Robert Stevens & Sons Ltd
Office Extension

We were recently contacted by Robert Stevens & Sons Ltd., in Rochford Essex, to undertake a design study to extend the offices attached to their manufacturing units.

They were looking to consolidate their office accommodation (otherwise spread around the interior of their factories) and sought a building which better reflected the high quality of work they produce.

Offices prior to extension

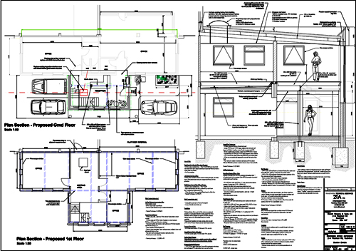
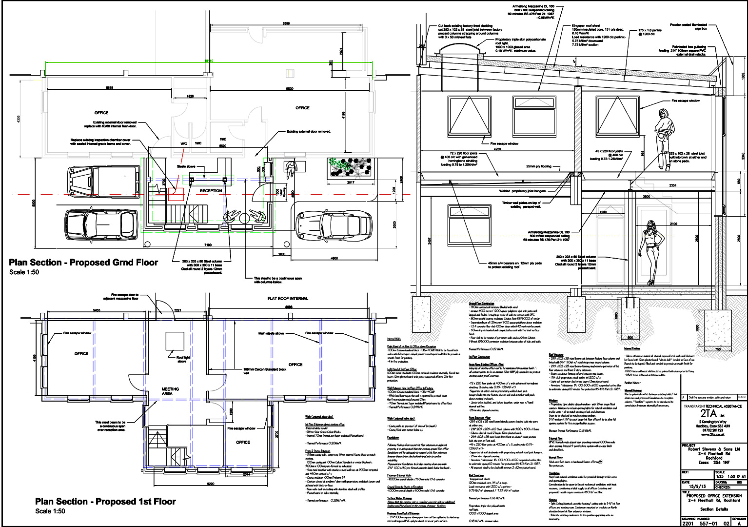
The proposal included a second floor extension to their existing office unit with a 2 storey extension to the front to provide a reception area.



After initial 3D visualisation “sketches” were prepared the design was refined and a full set of external visuals produced, together with drawings for Planning and Building Regulations approval.
Part of the drawing pack issued for Planning and Building Regs approval.